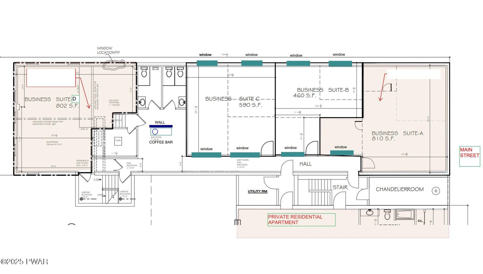
Are you looking for an amazing space for your office? Look no further than this NEWLY renovated prime professional space available for lease on Main Avenue, right in the heart of Hawley Borough! Located in the historic Dime Bank building, this newly renovated second-floor suite features modern updates and classic charm. The space features rich hardwood floors, plenty of natural light, and a professional setting ideal for offices, studios, or other small businesses. Utilities including heat, AC, electric, water, sewer, & 2 parking spaces are all provided, making it a convenient and cost-effective choice. 2 restrooms, corridor, & bonus coffee bar are shared among the units on the second floor. With its central location, you'll enjoy easy access for clients--just steps away from shops, dining, and all that downtown Hawley has to offer!
Show all description