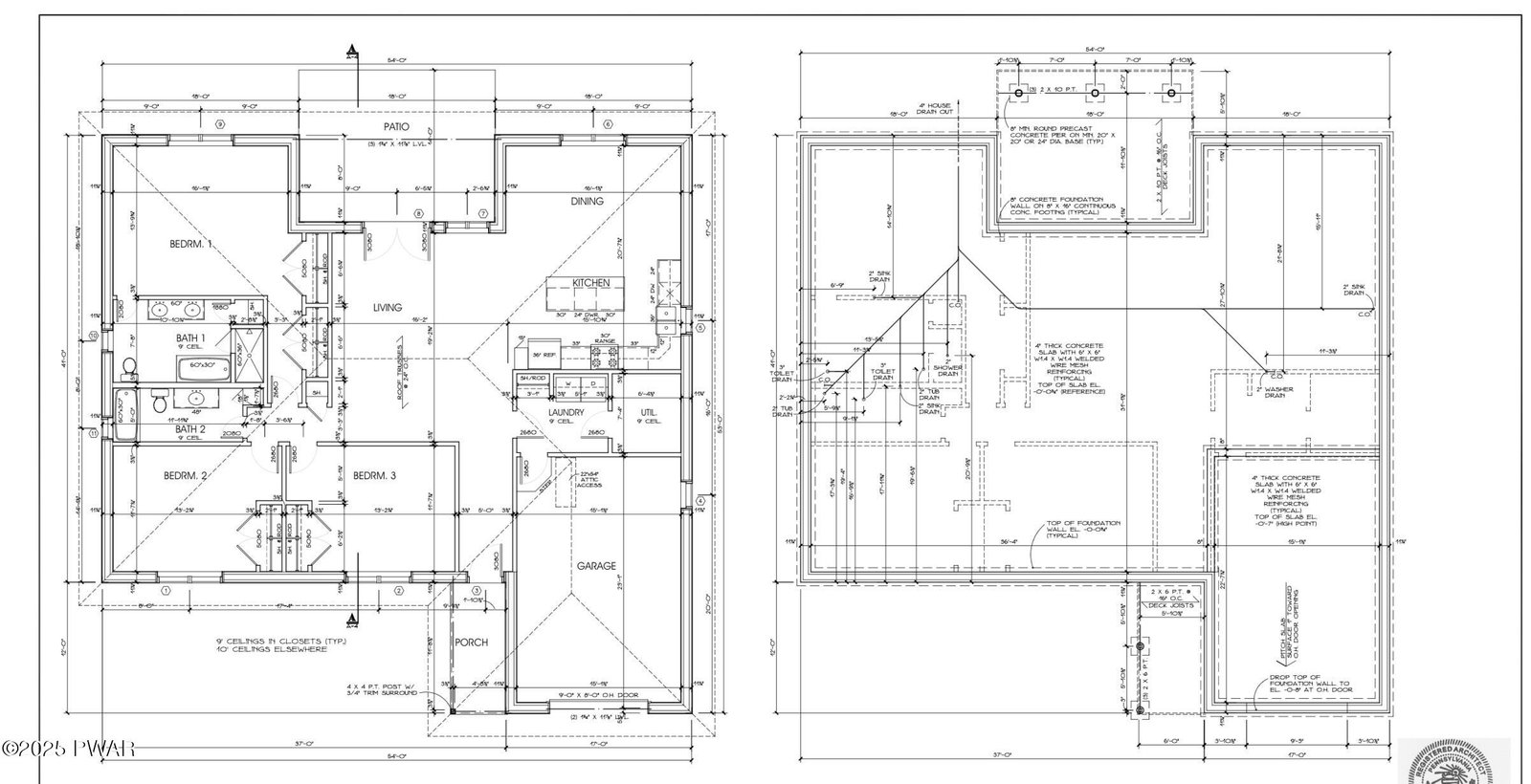
376-2 Osprey Circle